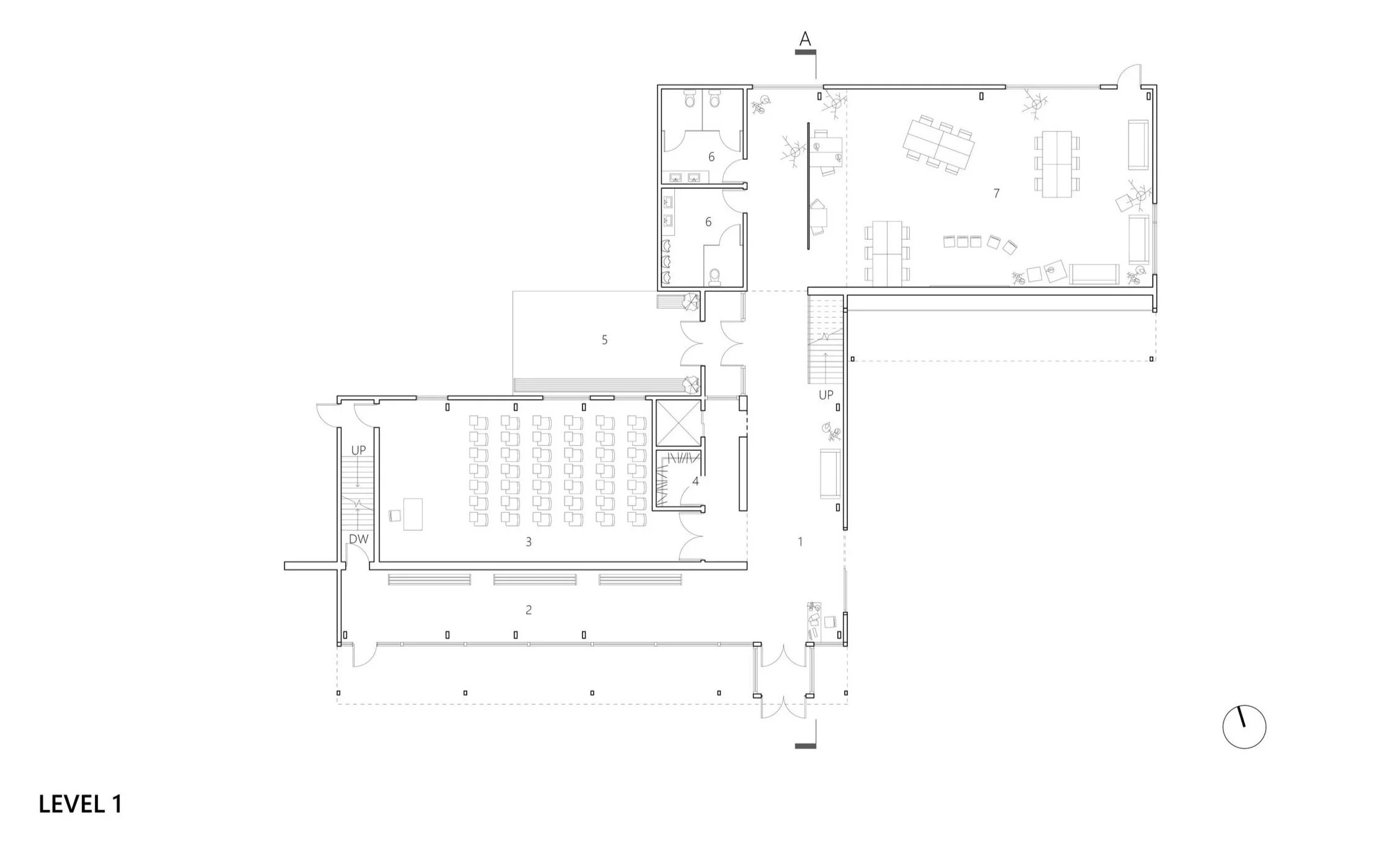
Innovation Park Visitor’s Centre
THINK TANK
LOCATION
Boyd Conservation Area, Woodbridge, Ontario
AREA
364 m2
PROGRAM
To design a visitor’s centre for education programs and events for individuals and communities to increase awareness and adoption of sustainable technologies.
PARTNERS
John H., Ruslan I.
Part of a larger master plan, the design promotes sustainable practice through one main feature wall. It provides number of sustainable strategies including geothermal cooling, wind-scoop, and trombe wall. Furthermore, it separates the private program; offices, and public program; presentation room, exhibition room, and lecture hall. In addition, channel glass is used as the façade to offset the heaviness of the feature wall.